Продается квартира Верхняя Береговая, Хмельницкий, Хмельницкая, Выставка (№ 211-536-013)
Цена: 37 000 $

Верхняя Береговая, Хмельницкий, Хмельницкая, Выставка
Характеристики
| Цена: | 37 000 $ |
|---|---|
| № объекта: | 211-536-013 |
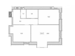
| Комнат: | 2 |
| Этаж: | 1 / 8 |
| Площадь: | 59 / - / - м2 |
| Дополнительно: | новостройка |
Описание
2-кімнатна квартира в елітному будинку на 1 поверсі під комерцію. Зроблений окремий вхід! Прекрасне планування! Жодної несучої стіни - можливі різні варіанти повного перепланування. 3 великих вікна + вхідна група. Дуже світла квартира цілий день. Високі стелі. Ідеальний варіант під офіс, салон краси, мовну студію чи стоматологію (є можливість докупити кладовку в підвалі під квартирою). Багато місця для парковки авто. Чудова транспортна розв'язка, 2хв до зупинки Електроніка. Будинок зданий, газ проведений, електроенергія є, сусідні офіси вже працюють.





